
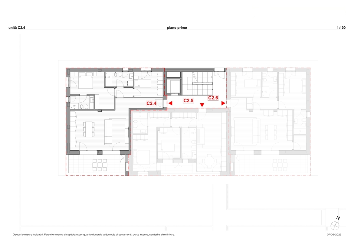
Trilocale a Treviolo (BG)
Edilizia convenzionata:
Trilocale situato al piano primo, con terrazzo.
L’appartamento comprende un’ampia zona giorno, una camera da letto matrimoniale, una camera singola, due bagni e un disimpegno.
Il box doppio, al piano interrato, è raggiungibile tramite il vano scale e l’ascensore condominiali.
Tutte le unità abitative di Residenza Exclusive Homes saranno in classe energetica A1, avranno riscaldamento a pavimento e avranno di serie un impianto per la depurazione e il ricambio dell’aria (VMC) con filtri antibatterici di nuova generazione ad elevata efficienza, per garantire la massima qualità dell’aria interna.
