
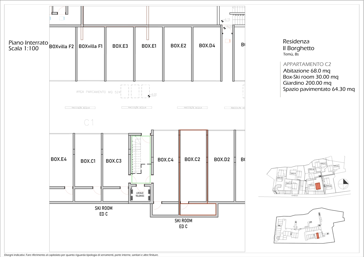
Trilocale piano terra a Temù
Trilocale situato al piano terra, con ampio giardino e spazio pavimentato esterno.
L’appartamento comprende un’ampia zona giorno, due camere da letto (una matrimoniale e una singola) e un bagno.
Box singolo e ski room, al piano interrato, raggiungibile tramite il vano scale.
Tutte le unità abitative di Residenza Luxury Houses Il Borghetto saranno in classe energetica A4, avranno riscaldamento a pavimento.
